Pridržujemo si pravico do spremembe cen, ki se zgodi v primeru povišanja cen s strani dobavitelja za izdelke, ki niso na zalogi oz. so na zalogi pri dobavitelju.
Zaenkrat še ni mnenj kupcev.
error
Vašega mnenja ni mogoče poslati
feedback
Prijavi komentar
Ali ste prepričani, da želite prijaviti ta komentar?
check_circle
Poročilo je bilo poslano
Vaše poročilo je bilo oddano in ga bo obravnaval moderator.
error
Vašega poročila ni mogoče poslati
Napišite mnenje
check_circle
Mnenje je bilo poslano
Vaš komentar je bil dodan in bo na voljo, ko bo potrjen s strani moderatorja.
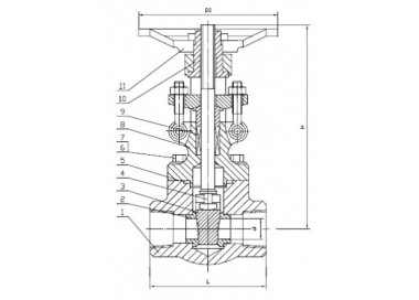
1. Krožni ventil razreda 800.
2. Oblikovanje v skladu z EN ISO 15761 (API 602).
3. Izdelano iz kovanega jekla ASTM A105N.
4. Sedež iz nerjavečega jekla, utrjenega s stelitom.
5. Disk iz nerjavečega jekla.
6. Obroba št. 8 (enakovredno XU).
7. Navojni konci v skladu z ASME B1.20.1 NPT.
8. Pokrov z vijaki.
9. Maks. Delovni tlak 140 Bar.
10. Delovna temperatura: -29º C do 420º C.
1. Krožni ventil 150 razreda.
2. Oblikovanje v skladu z EN ISO 15761 (API 602).
2. Izdelano iz kovanega jekla ASTM A105N.
3. Sedež iz nerjavečega jekla, utrjen s stelitom.
4. Disk iz nerjavečega jekla.
5. Obroba # 8 (enakovredno XU).
6. Konci s prirobnico v skladu z ANSI B 16.5.
7. Pokrov z vijaki.
8. Maks. Delovni tlak 19 barov.
9. Delovna temperatura: -29º C do 420º C.
1. Zaporni ventil 150 razreda.
2. Oblikovanje v skladu z EN ISO 15761 (API 602).
3. Izdelano iz kovanega jekla ASTM A105N.
4. Sedež iz nerjavečega jekla, utrjen s stelitom.
5. Zagozdni disk iz nerjavečega jekla.
6. Obroba št. 8 (enakovredno XU).
7. Konci s prirobnico v skladu z ANSI B 16.5.
8. Pokrov motorja z vijaki.
9. Maks. Delovni tlak 19 barov.
10. Delovna temperatura: -29ºC do 420ºC.
1. Loputa, prirobnična.
2. Ohišje EN-GJL-200 (GG-20) CI omogoča vgradnjo med prirobnice ANSI 150 in EN 1092 PN 10/16.
3. Sedež ohišja EPDM.
4. Disk iz nerjavečega jekla 1.4408 (CF8M).
5. Montažna plošča aktuatorja v skladu z ISO 5211.
6. Priključna površina v skladu z UNE EN 558-1 serija 20 (DIN 3202 K1).
7. Epoksidni premaz.
8. Delovna temperatura -20ºC +120ºC.
9. Najvišji delovni tlak: 16...
1. Kontrolni ventil razreda 800 batni tip.
2. Oblikovanje v skladu z EN ISO 15761 (API 602).
3. Izdelano iz kovanega jekla ASTM A105N.
4. Sedež v karoseriji utrjen s stelitom.
5. Bat iz kaljenega nerjavečega jekla.
6. Obroba št. 8 (enakovredno XU).
7. Navojni konci po po ASME B1.20.1 (NPT).
8. Pokrov z vijaki.
9. Maks. Delovni tlak 140 barov.
10. Delovna temperatura: -29º C do 420º C.
1. Kroglični ventil iz nerjavečega jekla s polnim odprtjem, 3-delni.
2. Varilni konci v skladu s standardom ANSI B 16.25.
3. Iz nerjavečega jekla 1.4408 (CF8M).
4. Kroglični sedeži PTFE + 15 % GF.
5. O-obroč v vretenu FKM (Viton).
6. Tesnilo vretena PTFE + 15 % grafita.
7. Zaklepni sistem.
8. Neposredna montaža pogona v skladu z ISO 5211.
9. Vreteno, odporno proti izpihovanju.
10. Maks. delovni...
1. Zaporni ventil 150 razreda.
2. Oblikovanje po API 600.
3. Izdelano iz ogljikovega jekla ASTM A216 WCB.
4. Klinasti disk ASTM A216 + 13 Cr.
5. Sedež ASTM A105 + 13 Cr.
6. V skladu z ASME B 16.10.
7. Konci s prirobnico v skladu z ASME B 16.5.
8. Maks. Delovni tlak 19,6 bar (285 psi) pri 38ºC / 5,5 bar (80 psi) pri 425ºC.
error Vašega mnenja ni mogoče poslati